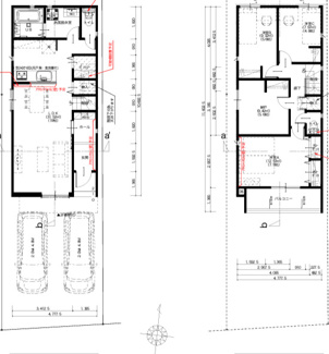
【名古屋市守山区西島町新築戸建1号棟】✨️仲介手数料無料✨️守山小学校・守山中学校
ローンシミュレーションこの物件を購入した場合の、月々の支払い価格の一例です。借り入れを保証するものではございません。
- 返済期間
-
- 金利
-
- ボーナス時の増額(1回分)
-
- 借入金額:
-
- 頭金:
-

- 毎月の返済額:
(※元利均等方式 金利5.00%まで ※返済年数5~50年まで入力できます)
(※ボーナスは年2回で計算しています。1000万円まで入力できます)
(※物件購入時、その他諸費用が発生する場合がございます)
担当者のコメント 富田裕子宅地建物取引士ファイナンシャルプランナー

- 仲介手数料無料!施工:メルディア
駅まで徒歩4分の好立地です。広さに余裕のあるお風呂なので体の大きい方にもゆとりがありおすすめです。家族皆で暮らすなら広々とした4LDKの物件。動線を意識したデザインのシステムキッチン付きで作業能率が上がります。お住まいは、ご自身のライフスタイルや好みに合わせたものがいいですよね。素敵なゆとりある生活を送りましょう。不動産を探すなら、当社にお任せください。
ポイント・特徴
物件概要
【新築一戸建】 物件番号:103020481 情報更新日:2026年05月16日 次回更新予定日:2026年05月30日| 所在地 | 愛知県名古屋市守山区西島町 | ||
|---|---|---|---|
| 交通 | |||
| 間取り/詳細 | 4LDK/ | 建物面積(坪数) | 98.13㎡(29.68坪) |
| 価格 | 4,690万円 | ||
| 駐車場/月額料金 | -/- | ||
| 土地の敷金/保証金 | -/- | 借地料/借地期間 | -/- |
| 土地権利 | 所有権 | 土地面積(坪数) | 109.87㎡(33.23坪) |
| 傾斜地部分面積 | - | 路地状敷地 | - |
| 私道負担面積/セットバック | -/無 | 高圧線下面積 | - |
| 地目/地勢 | 宅地/- | 接道状況 | - |
| 建ぺい率/容積率 | 60%/200% | 用途地域 | 第二種中高層住居専用 |
| 都市計画 | 市街化区域 | 種別/構造 | 新築一戸建/木造 |
| 階建 | 2階建 | 築年月(築年数) | 2026年 7月 (予定) |
| 総区画数/販売区画数 | 3区画/3区画 | 向き | - |
| 現況 | 未完成 | その他の法令上の制限 | - |
| 取引態様/引渡時期 | 仲介/相談 | 建築確認番号 | 第KS号 |
| 物件番号 | 103020481 | 取引条件の有効期限 | 2026年05月30日 |
| 設備条件 |
|
||
| 備考 |
★㈱メルディア(三栄建築設計)★ (オープンハウスグループ) ―――――――――――― ブランド名:メルディア ―――――――――――― 年間2000棟を超える住宅を供給しているメディアグループは東証一部上場企業。 年々売上が伸びている人気の分譲住宅です。 ▼コンセプト ”分譲住宅であっても、すべてがオリジナル” 1棟1棟ゼロから企画し、ゼロからつくりあげ、ひとつとして同じものをつくらない”家づくりを目指しています。 3年連続グッドデザイン賞を受賞している設計に自信のある施工です。 ▼特徴 ・土地の形状に合わせた使いやすい間取りで設計されている印象です。 ・水回りを集中させるなど主婦が動きやすいように家事動線もよく考えられています。 ・デザインもシンプルでスタイリッシュ! ・比較的コンパクトな住宅が多いですが、狭さを感じさせない間取りと収納の多さで若い人に圧倒的な人気があります。 ・食洗機や床暖房など設備も充実しています シンプルな新築戸建をカスタマイズして 好みのインテリアを楽しんでください☆” ーーーーーーーーーーーーーーーーーー ★物件の諸費用概算目安★ ・登記費用:約40万円 ・表題登記費用:約12万円 ・契約書貼付印紙代:1万円 ・固定資産税清算金:約12万(日割精算) ・火災保険:約25万円 ・仲介手数料:0円 小計:約90万円 (フラット35利用の場合) ・適合証明書発行手数料:約8~12万円 ・事務手数料:借入金額の約2.2% ・取次会社手数料:11万円 ・印紙代:2万200円 小計:約128万円(借入額:物件価格) (銀行費用の場合) 事務手数料:約2万2,000円~約5万5000円 印紙代:2万200円 保証料:借入金の約2.2% ※ネット銀行は保証料がなく事務手数料が借入金の1.1%~2.2%必要になります。 小計:約111万円(借入額:物件価格) 費用合計:約201万円~約218万円 総合計:4,690万円+218万円=約4,908万円(売出し時価格で算出) ^^^^^^^^^^^^^^^^^^^^ ※概算なので、銀行や借入によって費用は異なります。 火災保険料も会社や選び方により幅があります。 目安にしてください。 あなたに一番あった借入方法を見つけて少しでもお得に購入できますように! ※購入後には下記の費用も必要です。 購入後の費用も資金計画に含めておいてくださいね。 ・カーテンレール(カーテン) ・テレビアンテナ ・エアコン(壁穴工事費用なども必要) ・引越し費用 ・照明 など (物件価格の10%増しで予算をみておくと余裕があります) ※詳細はブログ『新築戸建購入後に必要な費用一覧』をご参考ください。 https://www.aplace.co.jp/blog/entry-160920/ ※銀行選びのお手伝いも致します。お気軽にご相談ください。 |
||
| 取扱会社 |
|
||
※地図上に表示される物件の位置は付近住所に所在することを表すものであり、実際の物件所在地とは異なる場合がございます。
















