【名古屋市瑞穂区田光町3丁目54-13新築戸建2号棟】✨️仲介手数料無料✨️瑞穂小学校・津賀田中学校
仲介手数料無料!瑞穂運動場西駅徒歩10分!施工:ケイアイスター不動産
-
-
ローンシミュレーションこの物件を購入した場合の、月々の支払い価格の一例です。借り入れを保証するものではございません。
- 返済期間
-
- 金利
-
- ボーナス時の増額(1回分)
-
- 借入金額:
-
- 頭金:
-

- 毎月の返済額:
(※元利均等方式 金利5.00%まで ※返済年数5~50年まで入力できます)
(※ボーナスは年2回で計算しています。1000万円まで入力できます)
(※物件購入時、その他諸費用が発生する場合がございます)
情報の見方担当者のコメント 富田裕子宅地建物取引士ファイナンシャルプランナー

- 仲介手数料無料!施工:ケイアイスター不動産
便利なスーパー「ヤマダイ瑞穂店」まで240mです。駅まで徒歩12分でアクセス可能です。浴室乾燥機付きの物件なので、乾燥機で浴室を乾燥させることができるのでカビの繁殖を防ぐことに役立ちます。生活を充実させる利便性が高い新築の戸建て物件です。衣食住の中でも「住」というのは、とても重要なものです。安心して暮らせる住まいをお求めなら、当社まで是非ご連絡くださいませ。
ポイント・特徴
物件概要
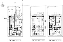
【新築一戸建】 物件番号:101625805 情報更新日:2026年05月14日 次回更新予定日:2026年05月21日所在地 愛知県名古屋市瑞穂区田光町3丁目54-13 交通 間取り/詳細 3LDK/ 建物面積(坪数) 105.43㎡(31.89坪) 価格 5,499万円 駐車場/月額料金 -/- 土地の敷金/保証金 -/- 借地料/借地期間 -/- 土地権利 所有権 土地面積(坪数) 81.43㎡(24.63坪) 傾斜地部分面積 - 路地状敷地 - 私道負担面積/セットバック -/無 高圧線下面積 - 地目/地勢 宅地/- 接道状況 一方(南 公道 4.5m) 建ぺい率/容積率 70%/180% 用途地域 第二種中高層住居専用 都市計画 市街化区域 種別/構造 新築一戸建/木造 階建 2階建 築年月(築年数) 2026年 6月 (予定) 総区画数/販売区画数 2区画/2区画 向き - 現況 未完成 その他の法令上の制限 - 取引態様/引渡時期 仲介/相談 建築確認番号 第R07SHC125718号 物件番号 101625805 取引条件の有効期限 2026年05月21日 設備条件 - 仲介手数料無料
- バルコニー
- 都市ガス
- 公営水道
- 公共下水
- 24時間換気システム
- 電気有
- コンロ2口以上
- システムキッチン
- コンロ3口
- 追焚機能浴室
- 浴室乾燥機
- 温水洗浄便座
- トイレ2ヶ所
- 浴室1坪以上
- ユニットバス
- 床下収納
- TVモニタ付インターホン
- 複層ガラス
- ディンプルキー
備考 ★KEIAIの家★
東証一部上場企業!ビルダーランキング全国第3位!
▼コンセプト
ケイアイスター不動産では、良いものを安く提供するため、”高品質”で”低価格”な資産価値向上につながる住まいづくりを目指しています。
”ケイアイブランド”と称し、納得の行くまで安心安全を追求するスタンスで「豊・楽・快」を想像し続ける企業でありたいと考えています。
▼特徴
・第三者機関に依頼し、すべての地盤を調査して土地状況に応じた最適な地盤対策を講じています。
その結果、地震が起きても不沈下しない安心の地盤を提供。
・日本最高の制度と品質のプレスカット材で地震にも強い!
・現場監督による厳しい品質管理と現場チェック、職人の育成、第三者住宅品質検査期間による国内最高レベルの住宅検査で、高い品質の住まいづくりを行っています。
・30年間無料定期点検を実施!
シンプルな新築戸建をカスタマイズして
好みのインテリアを楽しんでください☆”
ーーーーーーーーーーーーーーーーーー
★物件の諸費用概算目安★
・登記費用:約40万円
・表題登記費用:約12万円
・契約書貼付印紙代:1万円
・固定資産税清算金:約12万(日割精算)
・火災保険:約25万円
・仲介手数料:0円
小計:約90万円
(フラット35利用の場合)
・適合証明書発行手数料:約8~12万円
・事務手数料:借入金額の約2.2%
・取次会社手数料:11万円
・印紙代:2万200円
小計:約148万円(借入額:物件価格)
(銀行費用の場合)
事務手数料:約2万2,000円~約5万5000円
印紙代:2万200円
保証料:借入金の約2.2%
※ネット銀行は保証料がなく事務手数料が借入金の1.1%~2.2%必要になります。
小計:約131万円(借入額:物件価格)
費用合計:約221万円~約238万円
総合計:5,599万円+238万円=約5,837万円(売出し時価格で算出)
^^^^^^^^^^^^^^^^^^^^
※概算なので、銀行や借入によって費用は異なります。
火災保険料も会社や選び方により幅があります。
目安にしてください。
あなたに一番あった借入方法を見つけて少しでもお得に購入できますように!
※購入後には下記の費用も必要です。
購入後の費用も資金計画に含めておいてくださいね。
・カーテンレール(カーテン)
・テレビアンテナ
・エアコン(壁穴工事費用なども必要)
・引越し費用
・照明 など
(物件価格の10%増しで予算をみておくと余裕があります)
※詳細はブログ『新築戸建購入後に必要な費用一覧』をご参考ください。
https://www.aplace.co.jp/blog/entry-160920/
※銀行選びのお手伝いも致します。お気軽にご相談ください。
取扱会社 - Aplace株式会社
- 愛知県名古屋市東区代官町39−22 太洋ビル2F
- TEL:0120-644-550
- 愛知県知事 (3) 第22802号
- 公益社団法人 全日本不動産協会
※地図上に表示される物件の位置は付近住所に所在することを表すものであり、実際の物件所在地とは異なる場合がございます。
物件お問い合わせ
同じエリアの新築一戸建
価格と住所の近い物件
- 【名古屋市瑞穂区萩山町2丁目17新築戸建2号棟】✨️仲介手数料無料✨️豊岡小学校・萩山中学校
- 5,499万円 4LDK/101.72㎡
- 愛知県名古屋市瑞穂区萩山町2丁目
- 名古屋市営桜通線「瑞穂運動場西」駅 徒歩13分
- 【名古屋市瑞穂区田光町3丁目54-13新築戸建1号棟】✨️仲介手数料無料✨️瑞穂小学校・津賀田中学校
- 5,499万円 3LDK/105.43㎡
- 愛知県名古屋市瑞穂区田光町3丁目
- 名古屋市営桜通線「瑞穂運動場西」駅 徒歩12分
- 【名古屋市瑞穂区大喜町5丁目43-1新築戸建2号棟】✨️仲介手数料無料✨️瑞穂小学校・津賀田中学校
- 5,499万円 3LDK/131.58㎡
- 愛知県名古屋市瑞穂区大喜町5丁目
- 名古屋市営桜通線「瑞穂運動場西」駅 徒歩13分
- 【名古屋市瑞穂区井戸田町1丁目43−2新築戸建1号棟】✨️仲介手数料無料✨️井戸田小学校・津賀田中学校
- 5,490万円 4LDK/112.20㎡
- 愛知県名古屋市瑞穂区井戸田町1丁目
- 名古屋市営名城線「妙音通」駅 徒歩6分
- 【名古屋市瑞穂区御劔町3丁目45新築戸建1号棟】✨️仲介手数料無料✨️御劔小学校・瑞穂ヶ丘中学校
- 5,490万円 4LDK/108.58㎡
- 愛知県名古屋市瑞穂区御劔町3丁目
- 名古屋市営桜通線「桜山」駅 徒歩17分






























