【名古屋市港区福田1丁目110-5新築戸建2号棟】✨️仲介手数料無料✨️福田小学校・南陽中学校
仲介手数料無料!八田駅徒歩24分!施工:ファースト住建
-
-
ローンシミュレーションこの物件を購入した場合の、月々の支払い価格の一例です。借り入れを保証するものではございません。
- 返済期間
-
- 金利
-
- ボーナス時の増額(1回分)
-
- 借入金額:
-
- 頭金:
-

- 毎月の返済額:
(※元利均等方式 金利5.00%まで ※返済年数5~50年まで入力できます)
(※ボーナスは年2回で計算しています。1000万円まで入力できます)
(※物件購入時、その他諸費用が発生する場合がございます)
情報の見方担当者のコメント 富田裕子宅地建物取引士ファイナンシャルプランナー

- 仲介手数料無料!施工:ファースト住建
福田小学校が徒歩7分のところにあり、お子様の通学も便利です。TVインターホン付きでお子様のお留守番も安心です。3口コンロが付いているので、3つの料理を同時に進められて時短につながります。新生活を始めるならサービスルーム付きの3SLDK物件はいかがでしょうか。名古屋市港区にある一戸建てのお問い合わせは、当社が承っております。マイホームの購入を検討しているお客様のサポートを致します。
ポイント・特徴
物件概要
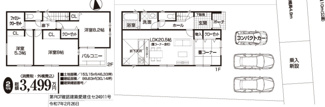
【新築一戸建】 物件番号:101917499 情報更新日:2026年05月14日 次回更新予定日:2026年05月21日所在地 愛知県名古屋市港区福田1丁目110-5 交通 間取り/詳細 3LDK/ 建物面積(坪数) 99.63㎡(30.13坪) 価格 3,499万円 駐車場/月額料金 -/- 土地の敷金/保証金 -/- 借地料/借地期間 -/- 土地権利 所有権 土地面積(坪数) 153.15㎡(46.32坪) 傾斜地部分面積 - 路地状敷地 - 私道負担面積/セットバック -/無 高圧線下面積 - 地目/地勢 宅地/- 接道状況 一方(東 公道 10.0m) 建ぺい率/容積率 60%/200% 用途地域 第二種住居 都市計画 市街化区域 種別/構造 新築一戸建/木造 階建 2階建 築年月(築年数) 2026年 6月 (予定) 総区画数/販売区画数 2区画/2区画 向き - 現況 未完成 その他の法令上の制限 - 取引態様/引渡時期 仲介/相談 建築確認番号 第O07確認建築愛建住セ24911号 物件番号 101917499 取引条件の有効期限 2026年05月21日 設備条件 - 仲介手数料無料
- バルコニー
- 都市ガス
- 公営水道
- 公共下水
- 24時間換気システム
- 電気有
- 駐車2台可
- コンロ2口以上
- システムキッチン
- 対面式キッチン
- コンロ3口
- オープンキッチン
- 追焚機能浴室
- 浴室乾燥機
- 温水洗浄便座
- トイレ2ヶ所
- 浴室1坪以上
- ユニットバス
- 床下収納
- TVモニタ付インターホン
- 複層ガラス
- ディンプルキー
備考 ★ファースト住建の家★
東証一部上場企業。関西No1の実績です。
兵庫・大阪をメインエリアに「良質な住まいを低価格で」をテーマに住宅を供給しています。
▼コンセプト
「安心して住める家」
▼特徴
・日本の風土に適した伝統的な在来工法により木造住宅。
・建築基準の壁量安全率は1.3倍を確保!
・省エネルギー対策等級4をクリアし省エネ対策基準をみたしています。
・Low-Eペアガラスを仕様で節電も意識。
・雨で汚れを浮かして流すクリーニング機能つきサイディングを採用していてお手入れがいらず長持ちする家です。
シンプルな新築戸建をカスタマイズして
好みのインテリアを楽しんでください☆”
ーーーーーーーーーーーーーーーーーー
★物件の諸費用概算目安★
・登記費用:約40万円
・表題登記費用:約12万円
・契約書貼付印紙代:1万円
・固定資産税清算金:約12万(日割精算)
・火災保険:約25万円
・仲介手数料:0円
小計:約90万円
(フラット35利用の場合)
・適合証明書発行手数料:約8~12万円
・事務手数料:借入金額の約2.2%
・取次会社手数料:11万円
・印紙代:2万200円
小計:約102万円(借入額:物件価格)
(銀行費用の場合)
事務手数料:約2万2,000円~約5万5000円
印紙代:2万200円
保証料:借入金の約2.2%
※ネット銀行は保証料がなく事務手数料が借入金の1.1%~2.2%必要になります。
小計:約84万円(借入額:物件価格)
費用合計:約174万円~約192万円
総合計:3,499万円+192万円=約3,691万円(売出し時価格で算出)
^^^^^^^^^^^^^^^^^^^^
※概算なので、銀行や借入によって費用は異なります。
火災保険料も会社や選び方により幅があります。
目安にしてください。
あなたに一番あった借入方法を見つけて少しでもお得に購入できますように!
※購入後には下記の費用も必要です。
購入後の費用も資金計画に含めておいてくださいね。
・カーテンレール(カーテン)
・テレビアンテナ
・エアコン(壁穴工事費用なども必要)
・引越し費用
・照明 など
(物件価格の10%増しで予算をみておくと余裕があります)
※詳細はブログ『新築戸建購入後に必要な費用一覧』をご参考ください。
https://www.aplace.co.jp/blog/entry-160920/
※銀行選びのお手伝いも致します。お気軽にご相談ください。取扱会社 - Aplace株式会社
- 愛知県名古屋市東区代官町39−22 太洋ビル2F
- TEL:0120-644-550
- 愛知県知事 (3) 第22802号
- 公益社団法人 全日本不動産協会
※地図上に表示される物件の位置は付近住所に所在することを表すものであり、実際の物件所在地とは異なる場合がございます。
物件お問い合わせ
価格と住所の近い物件
- 【名古屋市港区福田1丁目110-5新築戸建1号棟】✨️仲介手数料無料✨️福田小学校・南陽中学校
- 3,499万円 4LDK/100.44㎡
- 愛知県名古屋市港区福田1丁目
- 近鉄名古屋線「戸田」駅 徒歩35分
- 【名古屋市港区川間町1丁目190新築戸建】✨️仲介手数料無料✨️正保小学校・港北中学校
- 3,490万円 3LDK/91.31㎡
- 愛知県名古屋市港区川間町1丁目
- 名古屋臨海高速あおなみ線「港北」駅 徒歩8分
- 【名古屋市港区船頭場2丁目802新築戸建】✨️仲介手数料無料✨️福田小学校・南陽中学校
- 3,580万円 4LDK/110.95㎡
- 愛知県名古屋市港区船頭場2丁目
- 近鉄名古屋線「伏屋」駅 徒歩35分
- 【名古屋市港区宝神2丁目2408−1新築戸建1号棟】✨️仲介手数料無料✨️港西小学校・宝神中学校
- 3,590万円 4LDK/106.40㎡
- 愛知県名古屋市港区宝神2丁目
- 名古屋臨海高速あおなみ線「稲永」駅 徒歩15分
- 【名古屋市港区秋葉1丁目130-231新築戸建】✨️仲介手数料無料✨️南陽小学校・南陽東中学校
- 3,590万円 4LDK/101.74㎡
- 愛知県名古屋市港区秋葉1丁目
- 近鉄名古屋線「戸田」駅 徒歩48分






















