【名古屋市守山区川北町352新築戸建B号棟】✨️仲介手数料無料✨️白沢小学校・守山北中学校
仲介手数料無料!ガイドウェイバス川村駅徒歩3分!地下鉄名城線へのアクセス良好です。施工:飯田産業
-
-
ローンシミュレーションこの物件を購入した場合の、月々の支払い価格の一例です。借り入れを保証するものではございません。
- 返済期間
-
- 金利
-
- ボーナス時の増額(1回分)
-
- 借入金額:
-
- 頭金:
-

- 毎月の返済額:
(※元利均等方式 金利5.00%まで ※返済年数5~50年まで入力できます)
(※ボーナスは年2回で計算しています。1000万円まで入力できます)
(※物件購入時、その他諸費用が発生する場合がございます)
情報の見方担当者のコメント 富田裕子宅地建物取引士ファイナンシャルプランナー

- 仲介手数料無料!施工:飯田産業
徒歩7分の場所に白沢小学校があります。トイレが2ヶ所にあるので複数人でも快適に暮らせます。使いやすくおしゃれでニーズの高いシステムキッチン付きの物件です。皆で仲良く生活できる4LDKの物件情報はこちらです。Aplaceでは、ガイドウェイバス志段味線川村周辺にある不動産をご紹介しております。引っ越しを検討している方はぜひご連絡ください。
ポイント・特徴
物件概要
【新築一戸建】 物件番号:101472020 情報更新日:2026年03月03日 次回更新予定日:2026年03月17日所在地 愛知県名古屋市守山区川北町352 交通 - ガイドウェイバス志段味線「川村」駅 徒歩4分
- ガイドウェイバス志段味線「川宮」駅 徒歩13分
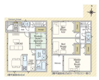
間取り/詳細 4LDK/ 建物面積(坪数) 98.14㎡(29.68坪) 価格 3,290万円 駐車場/月額料金 -/- 土地の敷金/保証金 -/- 借地料/借地期間 -/- 土地権利 所有権 土地面積(坪数) 127.20㎡(38.47坪) 傾斜地部分面積 - 路地状敷地 - 私道負担面積/セットバック -/無 高圧線下面積 - 地目/地勢 宅地/- 接道状況 一方(北 公道 6.0m) 建ぺい率/容積率 60%/200% 用途地域 第一種住居/第二種住居 都市計画 市街化区域 種別/構造 新築一戸建/木造 階建 2階建 築年月(築年数) 2026年 3月 (予定) 総区画数/販売区画数 2区画/2区画 向き - 現況 未完成 その他の法令上の制限 - 取引態様/引渡時期 仲介/相談 建築確認番号 第HPA-25-11485-1号 物件番号 101472020 取引条件の有効期限 2026年03月17日 設備条件 - 建設住宅性能評価書付
- 仲介手数料無料
- バルコニー
- 都市ガス
- 公営水道
- 公共下水
- 24時間換気システム
- 電気有
- 駐車2台可
- コンロ2口以上
- システムキッチン
- 対面式キッチン
- コンロ3口
- オープンキッチン
- 追焚機能浴室
- 温水洗浄便座
- トイレ2ヶ所
- 浴室1坪以上
- ユニットバス
- 床下収納
- TVモニタ付インターホン
- 複層ガラス
- ディンプルキー
備考 ★飯田産業の家★
――――――――――――――
飯田グループホールディングス
ブランド名:ハートフルタウン
――――――――――――――
▼飯田クループの5つの特徴
・国内シェアNo.1(年間約40,000戸提供)
・好立地(地域ネットワークで選ぶ土地)
・好価格(自社一貫体制で好価格を実現)
・高性能(住宅性能評価書付・耐震等級3取得)
・長期安心
いいだのいい家でおなじみ!
▼飯田産業の特徴
*I.D.S 工法という耐震性の高い工法です。外壁、1・2階床組、屋根を構造用合板で一体化させています。
独自の耐力壁パネルや2倍の強度をもつ独自の柱固定金物を採用しています。
*ライフスタイルの変化に合わせて間取りが変更しやすい構造体となっています。
設備の入れ替えも容易にできます。(玄関、廊下、水回りは固定壁)
広いリビングも実現できる設計です。
*住宅性能表示制度に対応し、
・耐震等級
・耐風等級
・耐風等級
・劣化対策等級
・維持管理対策等級
・ホルムアルディド対策等級
以上6項目で最高等級を取得しています。
※ブログ【名古屋の建売おしゃれ】
「飯田グループ6社を比較してみた!」もご参考ください。
→https://www.aplace.co.jp/blog/entry-307581/
シンプルな新築戸建をカスタマイズして
好みのインテリアを楽しんでください☆”
ーーーーーーーーーーーーーーーーーー
★物件の諸費用概算目安★
・登記費用:約40万円
・表題登記費用:約12万円
・契約書貼付印紙代:1万円
・固定資産税清算金:約12万(日割精算)
・火災保険:約25万円
・仲介手数料:0円
小計:約90万円
(フラット35利用の場合)
・適合証明書発行手数料:約8~12万円
・事務手数料:借入金額の約2.2%
・取次会社手数料:11万円
・印紙代:2万200円
小計:約97万円(借入額:物件価格)
(銀行費用の場合)
事務手数料:約2万2,000円~約5万5000円
印紙代:2万200円
保証料:借入金の約2.2%
※ネット銀行は保証料がなく事務手数料が借入金の1.1%~2.2%必要になります。
小計:約80万円(借入額:物件価格)
費用合計:約170万円~約187万円
総合計:3,290万円+187万円=約3,477万円(売出し時価格で算出)
^^^^^^^^^^^^^^^^^^^^
※概算なので、銀行や借入によって費用は異なります。
火災保険料も会社や選び方により幅があります。
目安にしてください。
あなたに一番あった借入方法を見つけて少しでもお得に購入できますように!
※購入後には下記の費用も必要です。
購入後の費用も資金計画に含めておいてくださいね。
・カーテンレール(カーテン)
・テレビアンテナ
・エアコン(壁穴工事費用なども必要)
・引越し費用
・照明 など
(物件価格の10%増しで予算をみておくと余裕があります)
※詳細はブログ『新築戸建購入後に必要な費用一覧』をご参考ください。
https://www.aplace.co.jp/blog/entry-160920/
※銀行選びのお手伝いも致します。お気軽にご相談ください。取扱会社 - Aplace株式会社
- 愛知県名古屋市東区代官町39−22 太洋ビル2F
- TEL:0120-644-550
- 愛知県知事 (3) 第22802号
- 公益社団法人 全日本不動産協会
※地図上に表示される物件の位置は付近住所に所在することを表すものであり、実際の物件所在地とは異なる場合がございます。
物件お問い合わせ
同じエリアの新築一戸建
価格と住所の近い物件
- 【名古屋市守山区川北町352新築戸建A号棟】✨️仲介手数料無料✨️白沢小学校・守山北中学校
- 3,290万円 4LDK/95.66㎡
- 愛知県名古屋市守山区川北町
- ガイドウェイバス志段味線「川村」駅 徒歩4分
- 【名古屋市守山区桔梗平2丁目1801新築戸建2号棟】✨️仲介手数料無料✨️吉根小学校・吉根中学校
- 3,390万円 4LDK/130.53㎡
- 愛知県名古屋市守山区桔梗平2丁目
- 中央線「春日井」駅 徒歩49分
- 【名古屋市守山区西城2丁目905新築戸建2号棟】✨️仲介手数料無料✨️西城小学校・守山西中学校
- 3,180万円 4LDK/91.91㎡
- 愛知県名古屋市守山区西城2丁目
- 名鉄瀬戸線「小幡」駅 徒歩14分
- 【名古屋市守山区廿軒家505新築戸建1号棟】✨️仲介手数料無料✨️廿軒家小学校・守山中学校
- 3,480万円 2LDK/90.47㎡
- 愛知県名古屋市守山区廿軒家
- 名鉄瀬戸線「守山自衛隊前」駅 徒歩3分
- 【名古屋市守山区桔梗平2丁目1801新築戸建1号棟】✨️仲介手数料無料✨️吉根小学校・吉根中学校
- 3,090万円 4LDK/94.76㎡
- 愛知県名古屋市守山区桔梗平2丁目
- 中央線「春日井」駅 徒歩49分
























