【名古屋市守山区西城2丁目905新築戸建2号棟】✨️仲介手数料無料✨️西城小学校・守山西中学校
仲介手数料無料!小幡駅徒歩18分!施工:タクトホーム
ローンシミュレーションこの物件を購入した場合の、月々の支払い価格の一例です。借り入れを保証するものではございません。
- 返済期間
-
- 金利
-
- ボーナス時の増額(1回分)
-
- 借入金額:
-
- 頭金:
-

- 毎月の返済額:
(※元利均等方式 金利5.00%まで ※返済年数5~50年まで入力できます)
(※ボーナスは年2回で計算しています。1000万円まで入力できます)
(※物件購入時、その他諸費用が発生する場合がございます)
担当者のコメント 富田裕子宅地建物取引士ファイナンシャルプランナー

- 仲介手数料無料!施工:タクトホーム
Yストア守山大屋敷テラスまで304mです。ニーズのあるピカピカの新築物件となっています。湿気を除去できるためカビや雑菌などの発生が抑えられる、浴室乾燥機付きの物件です。住みやすい空間の条件の1つに前面道路が6m以上あるところを入れてみては。不動産の購入は人生の中でも大きなお買い物だと言われています。そんな大きなお買い物で失敗しないためにも、購入をお考えの際は不動産のプロである当社スタッフにお任せください。
ポイント・特徴
物件概要
【新築一戸建】 物件番号:100906724 情報更新日:2026年02月03日 次回更新予定日:2026年02月10日| 所在地 | 愛知県名古屋市守山区西城2丁目905 | ||
|---|---|---|---|
| 交通 | |||
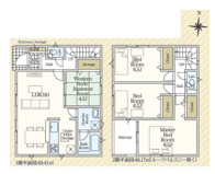
| 間取り/詳細 | 4LDK/ | 建物面積(坪数) | 91.91㎡(27.8坪) |
| 価格 | 3,350万円 | ||
| 駐車場/月額料金 | -/- | ||
| 土地の敷金/保証金 | -/- | 借地料/借地期間 | -/- |
| 土地権利 | 所有権 | 土地面積(坪数) | 136.18㎡(41.19坪) |
| 傾斜地部分面積 | - | 路地状敷地 | - |
| 私道負担面積/セットバック | -/無 | 高圧線下面積 | - |
| 地目/地勢 | 宅地/- | 接道状況 | 一方(北 公道 6.0m) |
| 建ぺい率/容積率 | 60%/200% | 用途地域 | 第一種住居 |
| 都市計画 | 市街化区域 | 種別/構造 | 新築一戸建/木造 |
| 階建 | 2階建 | 築年月(築年数) | 2026年 1月 (予定) |
| 総区画数/販売区画数 | 2区画/2区画 | 向き | - |
| 現況 | 未完成 | その他の法令上の制限 | - |
| 取引態様/引渡時期 | 仲介/相談 | 建築確認番号 | 第HPA-25-10798-1号 |
| 物件番号 | 100906724 | 取引条件の有効期限 | 2026年02月10日 |
| 設備条件 |
|
||
| 備考 |
★タクトホームの家★ ―――――――――――――― 飯田グループホールディングス ブランド名:グラファーレ ―――――――――――――― ▼飯田クループの5つの特徴 ・国内シェアNo.1(年間約40,000戸提供) ・好立地(地域ネットワークで選ぶ土地) ・好価格(自社一貫体制で好価格を実現) ・高性能(住宅性能評価書付・耐震等級3取得) ・長期安心 ▼タクトホームの特徴 住宅性能表示基準 ・耐震等級 ・耐風等級 ・劣化対策等級 ・維持管理対策等級 ・ホルムアルデヒド等級 4分野6項目で最高等級取得しています。 自由な間取りを実現するスケルトン・インフィル住宅がウリ! 構造部分と内装の部分を分離できる設計で間取り変更や設備メンテナンスが簡単にでき、ライフスタイルの変化に対応できる住宅です。 ※ブログ【名古屋の建売おしゃれ】 「飯田グループ6社を比較してみた!」もご参考ください。 →https://www.aplace.co.jp/blog/entry-307581/ シンプルな新築戸建をカスタマイズして 好みのインテリアを楽しんでください☆” ーーーーーーーーーーーーーーーーーー ★物件の諸費用概算目安★ ・登記費用:約40万円 ・表題登記費用:約12万円 ・契約書貼付印紙代:1万円 ・固定資産税清算金:約12万(日割精算) ・火災保険:約25万円 ・仲介手数料:0円 小計:約90万円 (フラット35利用の場合) ・適合証明書発行手数料:約8~12万円 ・事務手数料:借入金額の約2.2% ・取次会社手数料:11万円 ・印紙代:2万200円 小計:約97万円(借入額:物件価格) (銀行費用の場合) 事務手数料:約2万2,000円~約5万5000円 印紙代:2万200円 保証料:借入金の約2.2% ※ネット銀行は保証料がなく事務手数料が借入金の1.1%~2.2%必要になります。 小計:約80万円(借入額:物件価格) 費用合計:約170万円~約187万円 総合計:3350万円+万187円=約3,537万円(売出し時価格で算出) ^^^^^^^^^^^^^^^^^^^^ ※概算なので、銀行や借入によって費用は異なります。 火災保険料も会社や選び方により幅があります。 目安にしてください。 あなたに一番あった借入方法を見つけて少しでもお得に購入できますように! ※購入後には下記の費用も必要です。 購入後の費用も資金計画に含めておいてくださいね。 ・カーテンレール(カーテン) ・テレビアンテナ ・エアコン(壁穴工事費用なども必要) ・引越し費用 ・照明 など (物件価格の10%増しで予算をみておくと余裕があります) ※詳細はブログ『新築戸建購入後に必要な費用一覧』をご参考ください。 https://www.aplace.co.jp/blog/entry-160920/ ※銀行選びのお手伝いも致します。お気軽にご相談ください。 |
||
| 取扱会社 |
|
||
※地図上に表示される物件の位置は付近住所に所在することを表すものであり、実際の物件所在地とは異なる場合がございます。































