【名古屋市瑞穂区萩山町2丁目17新築戸建6号棟】✨️仲介手数料無料✨️豊岡小学校・萩山中学校
仲介手数料無料!瑞穂運動場東駅徒歩12分!施工:ケイアイプランニング
ローンシミュレーションこの物件を購入した場合の、月々の支払い価格の一例です。借り入れを保証するものではございません。
- 返済期間
-
- 金利
-
- ボーナス時の増額(1回分)
-
- 借入金額:
-
- 頭金:
-

- 毎月の返済額:
(※元利均等方式 金利5.00%まで ※返済年数5~50年まで入力できます)
(※ボーナスは年2回で計算しています。1000万円まで入力できます)
(※物件購入時、その他諸費用が発生する場合がございます)
担当者のコメント 富田裕子宅地建物取引士ファイナンシャルプランナー

- 仲介手数料無料!施工:ケイアイプランニング
薬や日用品を買うのに便利なスギ薬局汐路店まで496mです。2駅利用できる場所にあるので利便性が高いです。モニターから顔が見えるTVインターホン付きです。駅から徒歩13分の物件です。名古屋市瑞穂区で新生活をスタートする方のために、当社ではより多くの不動産情報を取り扱っております。お引っ越しをお考えなら、是非ご連絡ください。
ポイント・特徴
物件概要
【新築一戸建】 物件番号:93226228 情報更新日:2025年11月10日 次回更新予定日:2025年11月24日| 所在地 | 愛知県名古屋市瑞穂区萩山町2丁目17 | ||
|---|---|---|---|
| 交通 | |||
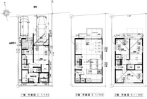
| 間取り/詳細 | 4LDK/ | 建物面積(坪数) | 101.10㎡(30.58坪) |
| 価格 | 5,699万円 | ||
| 駐車場/月額料金 | -/- | ||
| 土地の敷金/保証金 | -/- | 借地料/借地期間 | -/- |
| 土地権利 | 所有権 | 土地面積(坪数) | 107.13㎡(32.40坪) |
| 傾斜地部分面積 | - | 路地状敷地 | - |
| 私道負担面積/セットバック | -/無 | 高圧線下面積 | - |
| 地目/地勢 | 宅地/- | 接道状況 | 一方(南 公道 7.2m) |
| 建ぺい率/容積率 | 60%/182% | 用途地域 | 第一種中高層住居専用 |
| 都市計画 | 市街化区域 | 種別/構造 | 新築一戸建/木造 |
| 階建 | 2階建 | 築年月(築年数) | 2025年 7月 (新築) |
| 総区画数/販売区画数 | -/- | 向き | - |
| 現況 | 完成済み | その他の法令上の制限 | - |
| 取引態様/引渡時期 | 仲介/相談 | 建築確認番号 | 第KS125-0410-51205号 |
| 物件番号 | 93226228 | 取引条件の有効期限 | 2025年11月24日 |
| 設備条件 |
|
||
| 備考 |
★KEIAIの家★ 東証一部上場企業!ビルダーランキング全国第3位! ▼コンセプト ケイアイスター不動産では、良いものを安く提供するため、”高品質”で”低価格”な資産価値向上につながる住まいづくりを目指しています。 ”ケイアイブランド”と称し、納得の行くまで安心安全を追求するスタンスで「豊・楽・快」を想像し続ける企業でありたいと考えています。 ▼特徴 ・第三者機関に依頼し、すべての地盤を調査して土地状況に応じた最適な地盤対策を講じています。 その結果、地震が起きても不沈下しない安心の地盤を提供。 ・日本最高の制度と品質のプレスカット材で地震にも強い! ・現場監督による厳しい品質管理と現場チェック、職人の育成、第三者住宅品質検査期間による国内最高レベルの住宅検査で、高い品質の住まいづくりを行っています。 ・30年間無料定期点検を実施! |
||
| 取扱会社 |
|
||
※地図上に表示される物件の位置は付近住所に所在することを表すものであり、実際の物件所在地とは異なる場合がございます。































