【名古屋市瑞穂区石川町3丁目8-10新築戸建2号棟】✨️仲介手数料無料✨️汐路小学校・汐路中学校
仲介手数料無料!桜山駅徒歩12分!施工:住井工務店
ローンシミュレーションこの物件を購入した場合の、月々の支払い価格の一例です。借り入れを保証するものではございません。
- 返済期間
-
- 金利
-
- ボーナス時の増額(1回分)
-
- 借入金額:
-
- 頭金:
-

- 毎月の返済額:
(※元利均等方式 金利5.00%まで ※返済年数5~50年まで入力できます)
(※ボーナスは年2回で計算しています。1000万円まで入力できます)
(※物件購入時、その他諸費用が発生する場合がございます)
担当者のコメント 富田裕子宅地建物取引士ファイナンシャルプランナー

- 旬楽膳石川橋店まで468mです。2駅利用できる場所にあるので利便性が高いです。周辺環境も良好で、魅力的な住環境のある、2025年7月築の物件です。駅まで徒歩13分と少し離れている物件です。名古屋市瑞穂区での不動産探しはお任せください。ご希望の条件をAplaceまでお伝え頂ければ、よりスムーズな不動産探しが可能です。
ポイント・特徴
物件概要
【新築一戸建】 物件番号:97073220 情報更新日:2026年01月09日 次回更新予定日:2026年01月23日| 所在地 | 愛知県名古屋市瑞穂区石川町3丁目8-10 | ||
|---|---|---|---|
| 交通 | |||
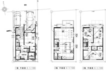
| 間取り/詳細 | 4LDK/ | 建物面積(坪数) | 108.46㎡(32.8坪) |
| 価格 | 6,980万円 | ||
| 駐車場/月額料金 | -/- | ||
| 土地の敷金/保証金 | -/- | 借地料/借地期間 | -/- |
| 土地権利 | 所有権 | 土地面積(坪数) | 80.89㎡(24.46坪) |
| 傾斜地部分面積 | - | 路地状敷地 | - |
| 私道負担面積/セットバック | -/無 | 高圧線下面積 | - |
| 地目/地勢 | 宅地/- | 接道状況 | 一方(北 公道 7.2m) |
| 建ぺい率/容積率 | 60%/200% | 用途地域 | 第一種中高層住居専用 |
| 都市計画 | 市街化区域 | 種別/構造 | 新築一戸建/木造 |
| 階建 | 2階建 | 築年月(築年数) | 2025年 7月 (新築) |
| 総区画数/販売区画数 | 4区画/1区画 | 向き | - |
| 現況 | 完成済み | その他の法令上の制限 | - |
| 取引態様/引渡時期 | 仲介/相談 | 建築確認番号 | - |
| 物件番号 | 97073220 | 取引条件の有効期限 | 2026年01月23日 |
| 設備条件 |
|
||
| 備考 | 汐路小学校が通学範囲内、学校まで徒歩4分。お子様のいらっしゃるご家庭にもお勧めの、4LDK物件で子供達と楽しく生活を送りましょう。ご好評の新築物件で、快適な生活をおくりましょう。不動産をお探しなら、当社をご用命ください。あなたのこだわりの条件に合った不動産がきっと見つかります。ぜひご検討くださいませ。 | ||
| 取扱会社 |
|
||
※地図上に表示される物件の位置は付近住所に所在することを表すものであり、実際の物件所在地とは異なる場合がございます。




























