【名古屋市瑞穂区村上町3丁目4−5新築戸建】✨️仲介手数料無料✨️
仲介手数料無料!瑞穂区役所駅徒歩10分!施工:メルディア 床暖房や食洗機などの設備が充実しています
-
-
ローンシミュレーションこの物件を購入した場合の、月々の支払い価格の一例です。借り入れを保証するものではございません。
- 返済期間
-
- 金利
-
- ボーナス時の増額(1回分)
-
- 借入金額:
-
- 頭金:
-

- 毎月の返済額:
(※元利均等方式 金利5.00%まで ※返済年数5~50年まで入力できます)
(※ボーナスは年2回で計算しています。1000万円まで入力できます)
(※物件購入時、その他諸費用が発生する場合がございます)
情報の見方担当者のコメント 富田裕子宅地建物取引士ファイナンシャルプランナー

- 仲介手数料無料!施工:メルディア
薬や日用品を買うのに便利なスギ薬局汐路店まで314mです。多くの方からこだわり条件でいただく新築戸建ての物件です。駅徒歩9分の物件です。浴室乾燥機付き物件ならば、日中でなくても洗濯物を干せるので日中は忙しいという人にもおすすめです。名古屋市営桜通線瑞穂区役所周辺にある不動産の詳細が気になる方は、Aplaceまでお気軽にご連絡くださいませ。スタッフ一同お問い合わせをお待ちしております。
ポイント・特徴
物件概要
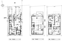
【新築一戸建】 物件番号:100977604 情報更新日:2026年02月03日 次回更新予定日:2026年02月10日所在地 愛知県名古屋市瑞穂区村上町3丁目4−5 交通 間取り/詳細 4LDK/ 建物面積(坪数) 107.58㎡(32.54坪) 価格 5,990万円 駐車場/月額料金 -/- 土地の敷金/保証金 -/- 借地料/借地期間 -/- 土地権利 所有権 土地面積(坪数) 78.35㎡(23.70坪) 傾斜地部分面積 - 路地状敷地 - 私道負担面積/セットバック -/無 高圧線下面積 - 地目/地勢 宅地/- 接道状況 - 建ぺい率/容積率 60%/200% 用途地域 第二種中高層住居専用 都市計画 市街化区域 種別/構造 新築一戸建/木造 階建 3階建 築年月(築年数) 2026年 5月 (予定) 総区画数/販売区画数 2区画/2区画 向き - 現況 未完成 その他の法令上の制限 - 取引態様/引渡時期 仲介/相談 建築確認番号 第R07確認建築CI東海A01517号 物件番号 100977604 取引条件の有効期限 2026年02月10日 設備条件 - 仲介手数料無料
- バルコニー
- 都市ガス
- 公営水道
- 公共下水
- 24時間換気システム
- 電気有
- コンロ2口以上
- 食器洗い乾燥機
- システムキッチン
- 対面式キッチン
- コンロ3口
- オープンキッチン
- 追焚機能浴室
- 浴室乾燥機
- 温水洗浄便座
- トイレ2ヶ所
- 浴室1坪以上
- ユニットバス
- 床暖房
- 床下収納
- TVモニタ付インターホン
- 複層ガラス
- ディンプルキー
備考 ★㈱メルディア(三栄建築設計)★
(オープンハウスグループ)
――――――――――――
ブランド名:メルディア
――――――――――――
年間2000棟を超える住宅を供給しているメディアグループは東証一部上場企業。
年々売上が伸びている人気の分譲住宅です。
▼コンセプト
”分譲住宅であっても、すべてがオリジナル”
1棟1棟ゼロから企画し、ゼロからつくりあげ、ひとつとして同じものをつくらない”家づくりを目指しています。
3年連続グッドデザイン賞を受賞している設計に自信のある施工です。
▼特徴
・土地の形状に合わせた使いやすい間取りで設計されている印象です。
・水回りを集中させるなど主婦が動きやすいように家事動線もよく考えられています。
・デザインもシンプルでスタイリッシュ!
・比較的コンパクトな住宅が多いですが、狭さを感じさせない間取りと収納の多さで若い人に圧倒的な人気があります。
・食洗機や床暖房など設備も充実しています
シンプルな新築戸建をカスタマイズして
好みのインテリアを楽しんでください☆”
ーーーーーーーーーーーーーーーーーー
★物件の諸費用概算目安★
・登記費用:約40万円
・表題登記費用:約12万円
・契約書貼付印紙代:1万円
・固定資産税清算金:約12万(日割精算)
・火災保険:約25万円
・仲介手数料:0円
小計:約90万円
(フラット35利用の場合)
・適合証明書発行手数料:約8~12万円
・事務手数料:借入金額の約2.2%
・取次会社手数料:11万円
・印紙代:2万200円
小計:約157万円(借入額:物件価格)
(銀行費用の場合)
事務手数料:約2万2,000円~約5万5000円
印紙代:2万200円
保証料:借入金の約2.2%
※ネット銀行は保証料がなく事務手数料が借入金の1.1%~2.2%必要になります。
小計:約139万円(借入額:物件価格)
費用合計:約129万円~約147万円
総合計:5990万円+147万円=約6,137万円(売出し時価格で算出)
^^^^^^^^^^^^^^^^^^^^
※概算なので、銀行や借入によって費用は異なります。
火災保険料も会社や選び方により幅があります。
目安にしてください。
あなたに一番あった借入方法を見つけて少しでもお得に購入できますように!
※購入後には下記の費用も必要です。
購入後の費用も資金計画に含めておいてくださいね。
・カーテンレール(カーテン)
・テレビアンテナ
・エアコン(壁穴工事費用なども必要)
・引越し費用
・照明 など
(物件価格の10%増しで予算をみておくと余裕があります)
※詳細はブログ『新築戸建購入後に必要な費用一覧』をご参考ください。
https://www.aplace.co.jp/blog/entry-160920/
※銀行選びのお手伝いも致します。お気軽にご相談ください。取扱会社 - Aplace株式会社
- 愛知県名古屋市東区代官町39−22 太洋ビル2F
- TEL:0120-644-550
- 愛知県知事 (3) 第22802号
- 公益社団法人 全日本不動産協会
※地図上に表示される物件の位置は付近住所に所在することを表すものであり、実際の物件所在地とは異なる場合がございます。
物件お問い合わせ
【名古屋市瑞穂区村上町3丁目4−5新築戸建】✨️仲介手数料無料✨️の他の区画の新築一戸建
区画 間取り 価格 - 4LDK 5,990万円 同じエリアの新築一戸建
価格と住所の近い物件
- 【名古屋市瑞穂区柳ケ枝町2丁目78新築戸建】✨️仲介手数料無料✨️井戸田小学校・津賀田中学校
- 5,990万円 3LDK/114.68㎡
- 愛知県名古屋市瑞穂区柳ケ枝町2丁目
- 名鉄名古屋本線「堀田」駅 徒歩9分
- 【名古屋市瑞穂区松月町5丁目118−1新築戸建1号棟】✨️仲介手数料無料✨️汐路小学校・汐路中学校
- 6,190万円 2LDK/112.92㎡
- 愛知県名古屋市瑞穂区松月町5丁目
- 名古屋市営桜通線「桜山」駅 徒歩12分
- 【名古屋市瑞穂区本願寺町1丁目新築戸建】✨️仲介手数料無料✨️
- 5,499万円 4LDK/104.37㎡
- 愛知県名古屋市瑞穂区本願寺町1丁目
- 名古屋市営桜通線「瑞穂区役所」駅 徒歩10分
- 【名古屋市瑞穂区萩山町2丁目17新築戸建6号棟】✨️仲介手数料無料✨️豊岡小学校・萩山中学校
- 5,399万円 4LDK/101.10㎡
- 愛知県名古屋市瑞穂区萩山町2丁目
- 名古屋市営桜通線「瑞穂運動場西」駅 徒歩13分
- 【名古屋市瑞穂区萩山町2丁目17新築戸建2号棟】✨️仲介手数料無料✨️豊岡小学校・萩山中学校
- 5,299万円 4LDK/101.72㎡
- 愛知県名古屋市瑞穂区萩山町2丁目
- 名古屋市営桜通線「瑞穂運動場西」駅 徒歩13分

































